【貸店舗】鶴岡市美咲町貸診療所
新着更新日:(次回更新予定日:物件番号:1210
- 鶴岡
- 貸店舗
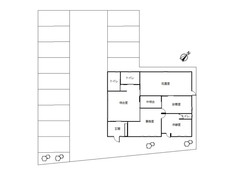
貸診療所(店舗事務所)!平成15年建築!鉄筋コンクリート造平屋建!専有面積136.32㎡!駐車場13台有!
物件基本情報
- 物件名
- 鶴岡市美咲町貸診療所
- 取引態様
- 仲介
- 所在地
- 山形県鶴岡市美咲町25番12号
- 交通
- 羽越本線「鶴岡」駅バス18分、バス停「三井病院前」徒歩1分
- 学区
- -
- 土地面積
- 坪単価
- -
- 建ぺい率
- 60%
- 容積率
- 200%
- 地目
- 宅地
- 用途地区
- 準工業地域
- 建物面積
- 136.32㎡(41.23坪)
- 建物構造
- 鉄筋コンクリート造平屋建
- 建築年月
- 平成15年2月
- 設備
- 公営水道・公共下水
- 特記事項
- 駐車場13台有
料金情報
- 賃料
- 27.5万円
- 共用施設等の負担金
- -
- 礼金
- 無し
- 敷金・保証金
- 1,500,000円
- 共用・管理費
- -
- 損害保険料の必要
- -





























